Offices at Marketplace

Located in Waite Park, Minnesota, this professional office building offers a prime location in the central hub of the greater St. Cloud area. Just off Highway 23 and only a half mile east of Highway 15, the property provides convenient access for tenants and visitors alike. The building features newly renovated common areas that create a modern, welcoming environment for businesses and clients. With its highly accessible location and updated interior spaces, this property is an ideal setting for a wide range of professional offices.

Newly renovated common areas

SPACE AVAILABLE

Suite 138

Size: 1,618 SF

Asking rent: $24 Modified Gross

Ground Level

Private entrance

Build to suit

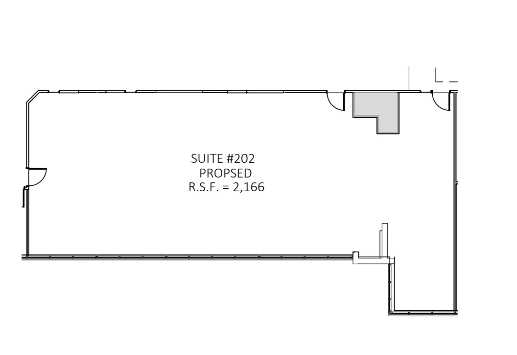
Suite 202

Size: 2,166 SF

Asking rent: $20 NNN

Build to suit

Natural light

2nd Floor Small Office Suites

Size: Between 159 SF and 305 SF

Asking rent: Please inquire, term negotiable

Single office suite located on 2nd floor.

New carpet and paint, turnkey rental.

Suite 300

Size: 643 SF

Asking rent: $26 Gross

Available May 1, 2026

2 offices, 1 storage room

Natural light

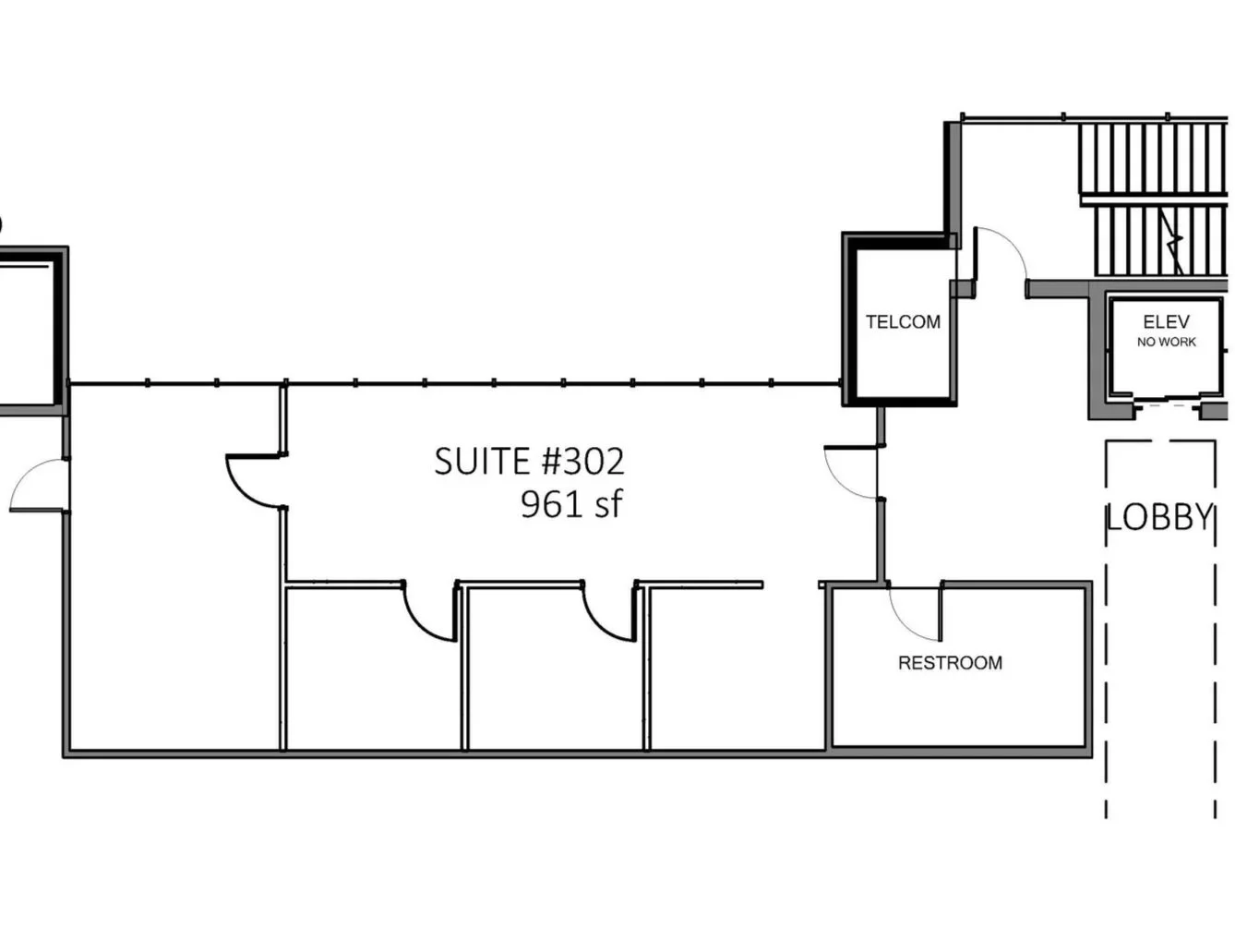
Suite 302

Size: 961 SF

Asking rent: $20 NNN

Newly renovated space, move in ready!

3 offices, 1 conference room

Natural light, great views

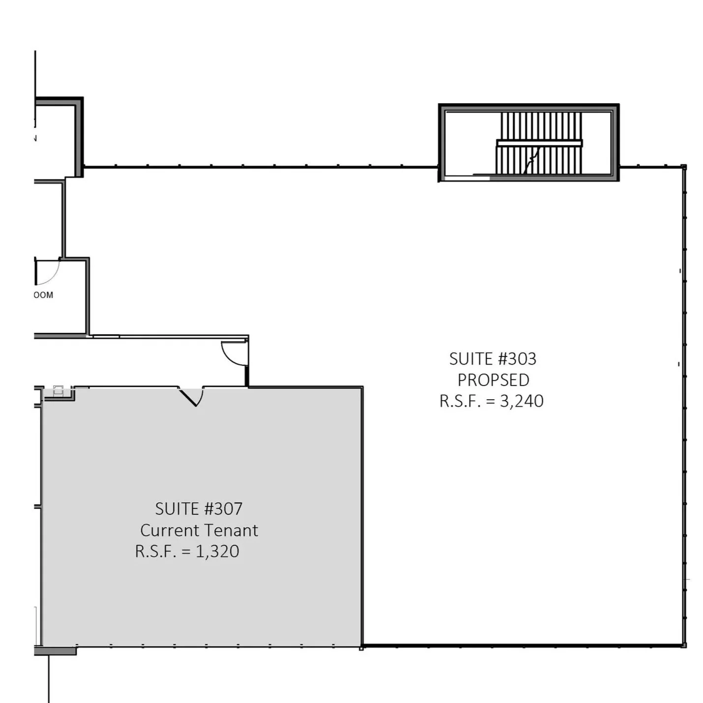
Suite 303

Size: 3,240 SF

Asking rent: $20 NNN

Build to suit

Natural light, great views